You are using an outdated browser. For a faster, safer browsing experience, upgrade for free today.

3100 acre cattle and farming ranch in Martin County, FL

Our first project with CREDE; a full service, 234 key hotel in West Palm Beach, FL with a 4-level parking garage.

658 acres of farm and grazing land directly in the pathway of progress in Martin County, FL.

Design, permitting and construction of an elite 18 hole golf course and related amenities in Martin County, FL.

In partnership with CREDE and the American Group, development and construction of 374 luxury rental units and parking deck in West Palm Beach, FL.

Partnered with Triton on 500 acres to bring critical mdeical services, commercial, industrial, and housing to Glades County, FL.

BFT Development is happy to announce our entry into the Village of Indiantown, FL market. Having worked with several other developers in the area, we have decided that the Village is squarely in the path of progress and we have staked our claim in this burgeoning community.

Because all outdoorsmen should be good stewards of our natural resources, BFT Development is purchasing its first piece of conservation land, in partnership with Pioneer Land.

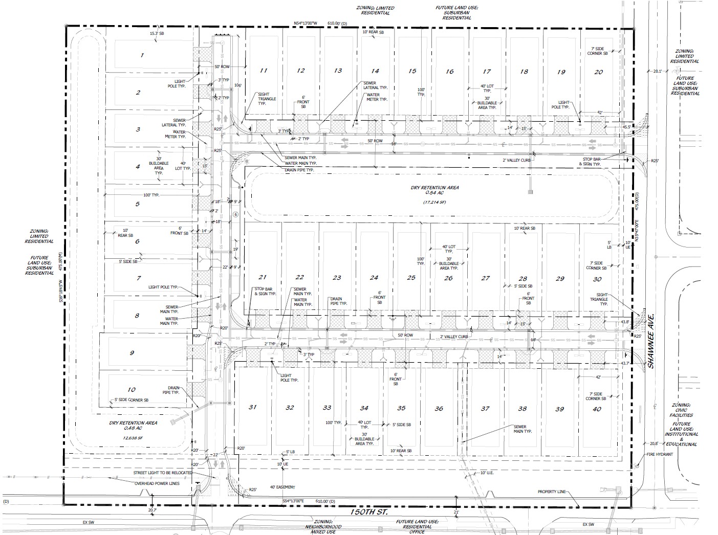
43 single family lots in the heart of the residential growth path of Martin County, FL

In the heart of Okeechobee County, this proposed 638 unit Planned Development seeks to establish a residentially focused community that also integrates an 8-acre neighborhood-scale commercial component.

90 garden style townhomes in Martin County, FL

Full design, entitlement and constrcution administration for a +/-82-acre K-12 campus, including academic buildings, career technical school, athletic fields, internal roadways, parking, and a Performing Arts Center as an ancillary educational facility along with approximetely 130 multifamily workforce housing units.

Entitlement and construction oversite for twenty-three (23) luxury single-family homes on +/-23.11-acres of undeveloped property located on Huchinson Island in St. Lucie County, FL.